索引號:4303000006/2026-1422451
發布機構:市自然資源局
發布目錄:通知公告
“湘鄉市鑫坡項目管理有限公司商住樓建設項目”規劃方案公示公告
湘鄉市人民政府門戶網站 www.yqfywz.cn 發布時間:2026-03-17 08:09
“湘鄉市鑫坡項目管理有限公司商住樓建設項目”規劃方案
公示公告
“湘鄉市鑫坡項目管理有限公司商住樓建設項目”規劃方案,已經經過局審批例會及自然資源與空間規劃規委會業務審核小組會議審批,即將進入規劃許可程序。根據《行政許可法》第四十條、《城鄉規劃法》第八條的相關規定,我局將該項目在行政許可前予以公示。公示日期:2026年3月17日至2026年 3月26日,聯系電話:0731-56822221,歡迎廣大市民群眾對規劃方案提出建議意見。
湘鄉市自然資源局
2026年3月17日
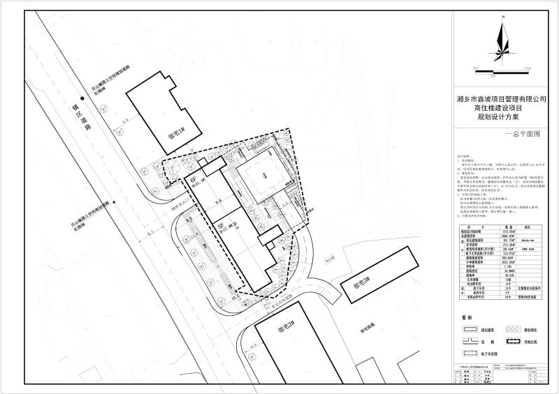
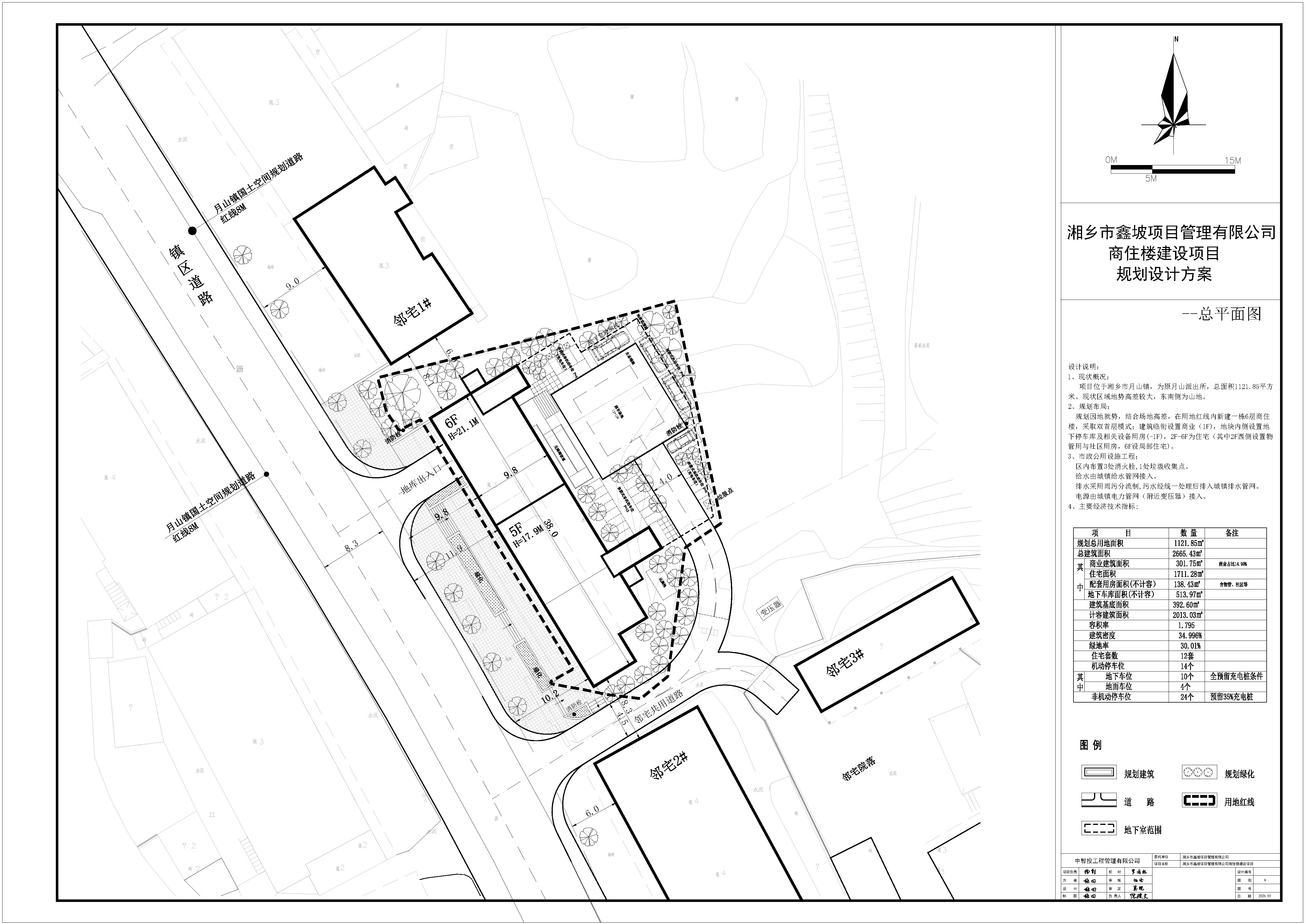
設計說明:
1、現狀概況;
項目位于湘鄉市月山鎮,總面積1121.85平方米。
2、規劃布局;
規劃因地就勢,結合場地高差,在用地紅線內新建一棟6層商住
樓,采取雙首層模式;建筑臨街設置商業(1F),地塊內側設置地
下停車庫及相關設備用房(-1F),2F-6F為住宅(其中2F西側設置物
管用與社區用房,6F設局部住宅)。
3、市政公用設施工程;
區內布置3處消火栓,1處垃圾收集點。
給水由城鎮給水管網接入。
排水采用雨污分流制,污水經統一處理后排入城鎮排水管網。
電源由城鎮電力管網(附近變壓器)接入。
掃一掃在手機打開當前頁
相關解讀
- 全部留言
- /
- 評論
- 有用()



